BIM正向設計協同云平臺:
以BIM技術作為建設項目數據載體,建立各參建方,包括建設方、設計院、施工方、預制廠及供應商在同一私有云完成協同任務處理的正向設計協同平臺。
設計院各專業設計師在同一平臺,通過企業私有云完成設計任務、設計成果云端協同、及時消息處理等任務,同時由BIM模型自動生成設計二維圖紙,達到圖模聯動的正向設計效果。
深化設計師,借助智能構件集,對項目結構體系中選用構件,通過調整參數,完成預制構件的拼裝、鋼筋避讓以及排版后出具各類預制構件的平面、立面、剖面、鋼筋定位、模板圖以及構件明細表等工作。

深化設計智能構件開發:
1.集團裝配式結構體系預制構件
包括:PK板、SP板、預制梁、灌漿內隔墻、預制外墻等五類構件的開發,主要功能包括:用戶自定義構件尺寸、拉下選擇任意圖集構件、自動標注構件編號、自動生成構件體積、鋼筋、埋件工程量、自定義拖拽完成預制梁深化設計、鋼筋避讓等。

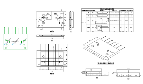
2.國標標準圖集構件
完成預制混凝土板式樓梯、陽臺板、空調板等三類構件的的產品開發,主要功能包括:一個構件玩轉整本圖集、用戶自定義構件尺寸、拉下選擇任意圖集構件、自動標注構件編號、自動生成構件體積、鋼筋、埋件工程量、一鍵生成平立剖、模板圖等。
